Wohnungen Typ A

Der Wohnungstyp A ist eine Vierzimmerwohnung mit 72m2. Die Küche wurde im 2001 komplett renoviert. Die Wände sind mit Raufaser Tapete tapeziert. Im ganzen gibt es in der WGG 6 Stück dieses Typs. Die Vierzimmerwohnungen im Erdgeschoss sind mit einer Treppe vom Balkon in den Garten ausgerüstet. Um den Plan der Wohnung anzusehen, wählen sie den unten stehenden Link. 

PDF download
Bildschirmfoto 2018-03-08 um 11.32.11.png
 
 
 

Wohnungen Typ B

Der Wohnungstyp B ist eine Dreizimmerwohnung mit 62.5m2. Sämtliche Zimmer sind mit Laminat belegt, die Küche und das Bad haben einen Plattenboden. Die Küche wurde im 2001 komplett renoviert. Die Wände sind mit Raufaser Tapete tapiziert. Im ganzen gibt es in der WGG 6 Stück dieses Typs. Um den Plan der Wohnung anzusehen, wählen sie den untenstehenden Link.

PDF Download
Bildschirmfoto+2018-03-08+um+11.34.24.png
 
 
 

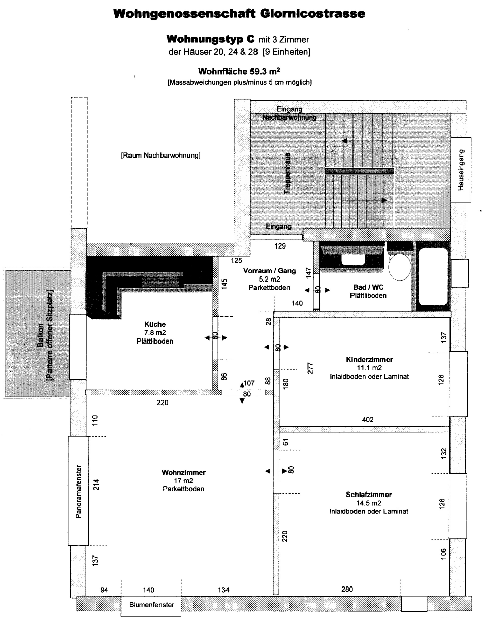
Wohnungen Typ C

Der Wohnungstyp C ist eine Dreizimmerwohnung mit 59.3m2. Die Küche wurde im 2001 komplett renoviert. Die Wände sind mit Raufaser Tapete tapeziert. Im ganzen gibt es in der WGG 9 Stück dieses Typs. Um den Plan der Wohnung anzusehen, wählen sie den untenstehenden Link.

PDF Download
Bildschirmfoto 2018-03-08 um 11.38.05.png
 
 

Dieses sind Beispielfotos aller Wohnungstypen.